Grundstück Sukosan mit Bauprojekt
Debeljak - Grundstück
120.000 €
120.000 €
Verfügbarkeit und Preise
Immobilie
Beschreibung
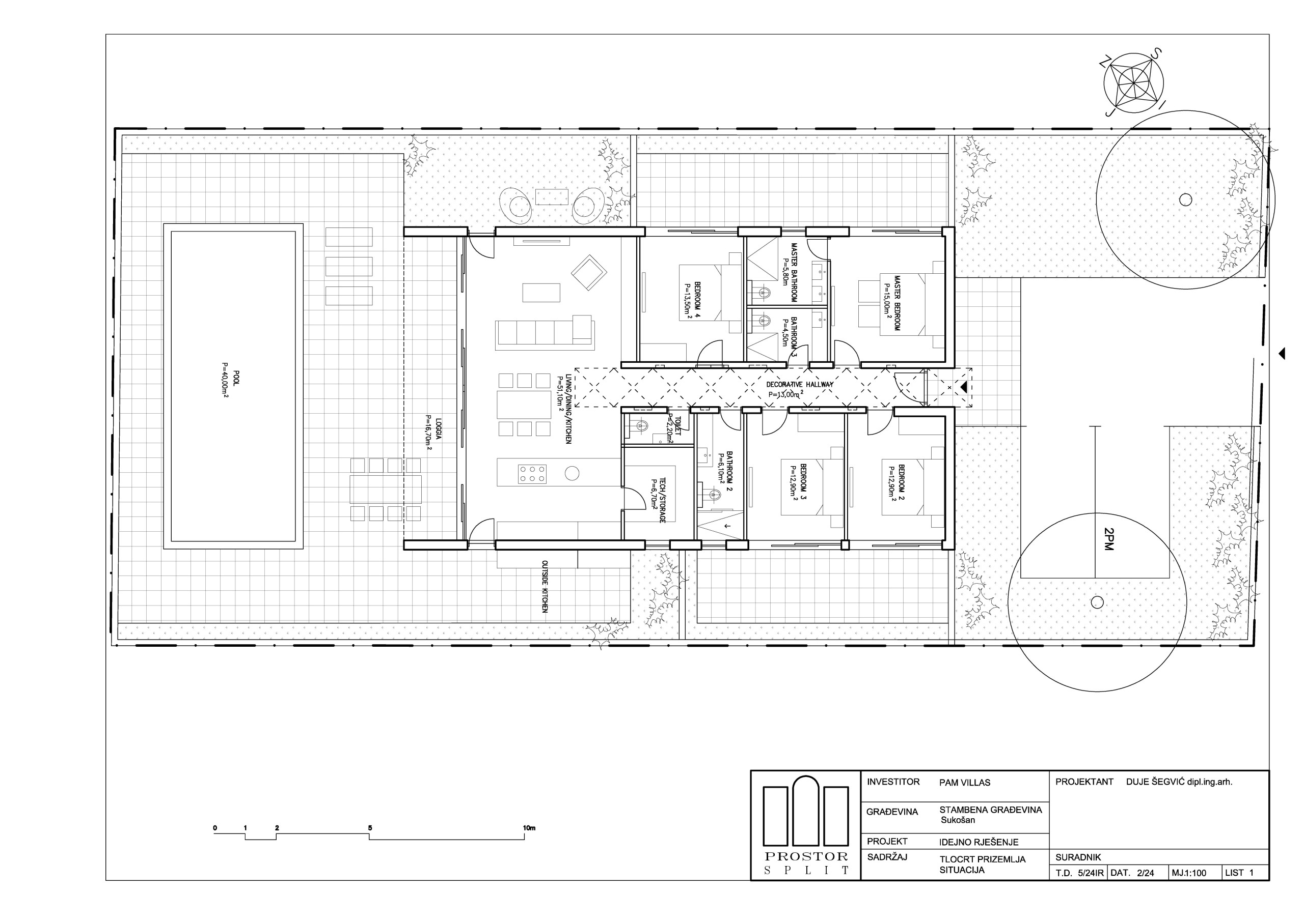
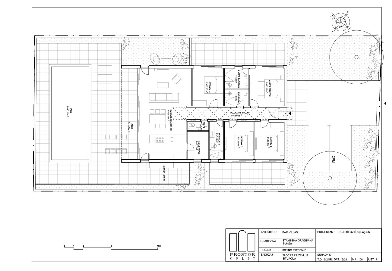
Zum Verkauf steht ein Baugrundstück mit einer Fläche von 617 m². Das Grundstück befindet sich in einem ausgewiesenen Neubaugebiet und ist für die Bebauung mit einem Wohngebäude vorgesehen.
Die Lage zeichnet sich durch eine leichte Hangposition mit Meerblick aus. Die Umgebung ist geprägt von neu errichteten Wohnhäusern und einer geordneten städtebaulichen Entwicklung.
Die Erschließung erfolgt über die vorhandene Zufahrtsstraße im Baugebiet. Anschlüsse für die grundlegende Infrastruktur (Strom, Wasser, Abwasser, Telekommunikation) sind in der Regel im Neubaugebiet vorbereitet bzw. in unmittelbarer Nähe vorhanden.
Das Grundstück bietet durch seine Größe und Zuschnitt gute Voraussetzungen für eine individuelle Bebauung im Rahmen der geltenden Bebauungsvorschriften.
Für das Grundstück wurde mit einem bekannten Architekten ein Projekt entwickelt, welches mit übernommen werden kann.
Weitere Details auf Anfrage.
Die Lage zeichnet sich durch eine leichte Hangposition mit Meerblick aus. Die Umgebung ist geprägt von neu errichteten Wohnhäusern und einer geordneten städtebaulichen Entwicklung.
Die Erschließung erfolgt über die vorhandene Zufahrtsstraße im Baugebiet. Anschlüsse für die grundlegende Infrastruktur (Strom, Wasser, Abwasser, Telekommunikation) sind in der Regel im Neubaugebiet vorbereitet bzw. in unmittelbarer Nähe vorhanden.
Das Grundstück bietet durch seine Größe und Zuschnitt gute Voraussetzungen für eine individuelle Bebauung im Rahmen der geltenden Bebauungsvorschriften.
Für das Grundstück wurde mit einem bekannten Architekten ein Projekt entwickelt, welches mit übernommen werden kann.
Weitere Details auf Anfrage.
Eigenschaften
Parkplatz im Freien
617 m²
Allgemeine Daten
617 m² Wohnfläche
Parkplatz im Freien auf dem Grundstück
Parkplatz im Freien auf dem Grundstück
2 Stellplätze